Q Q:405867229
邮箱:hxy311@163.com
地址:厦门市湖里区禾山街道护安路55号嘉园大厦3楼305室
联系人:黄夏阳
电话:0592-5677707
手机:13696959101
厦门专业综合设计工程一体化机构
关于我们
景观设计
景观工程
建筑设计
装饰工程
雕塑工程
业绩视频
联系我们
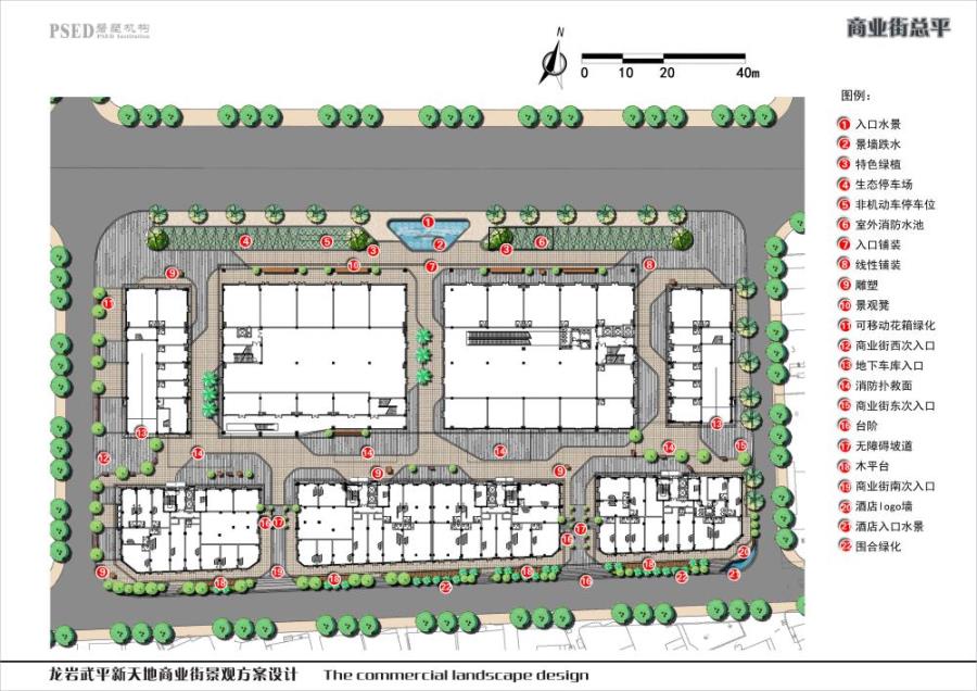
福建武平新天地
福建漳州角美星河特区
福建漳州平和新都汇
福建泉州永春新天地
上一个:[屋顶花园节点四]
下一个:[商业街入口景观]
[返回]
关于我们
|
景观设计
|
景观工程
|
建筑设计
|
装饰工程
|
雕塑工程
|
业绩视频
|
联系我们
|
版权所有:厦门磐塑景观工程设计有限公司 您是第
1000
位来访者
闽ICP备15010981号-1
技术支持:中信时代